Nástroje používateľa

Nástoje správy stránok


public:tmp:parkovisko

Parkovisko 727

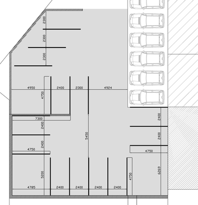
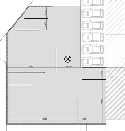
Momentálne sú urobené dva návrhy. Prvý návrh nektorí ľudia zhodnotili ako neefektívny, pretože sa tam nezmestí toľko áut, ako sme zvyknutí v súčasnosti. Preto vznikol aj druhý návrh, v ktorom sú zakreslené iba niektoré významné čiary a zvyšok priestoru sa bude parkovať by očko.

public/tmp/parkovisko.txt · Posledná úprava: 2016/06/13 16:34 od Roman Sališ